VATOH Expandable Container House

Imagine a room that works as hard as you do. By day, it's your bright, inspiring office or creative studio. By night, with a simple motion, a comfortable bed appears from custom cabinetry – ready for guests, staff, or your own rest.

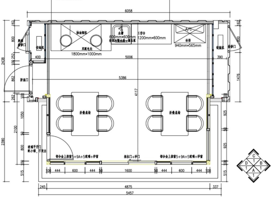
External Size

6060*4890*2900mm

Folded Size

6058*2438*2890mm

Building Area

30㎡

Container Type

20HQ

VATOH Expandable Container Kitchen | 20 Foot High Cube Shipping Container Kitchen with Prep Table & Stove | Prefab Commercial Kitchen for Sale VE60-20HQ04

Welcome to the VE60-20HQ04—a purpose-engineered expandable container kitchen designed for culinary professionals who need flexible, mobile, and functional food preparation space. Built from a 20ft High Cube shipping container with 9’6″ ceilings throughout, this innovative unit expands on-site to approximately 29 square meters of dedicated kitchen space, featuring a generous preparation area at one end, a full cooking station at the opposite end, and a versatile expanded central area for dining, service, or additional prep work.

At VATOH, we understand that commercial kitchens require intelligent workflow design, durable surfaces, and efficient use of space. The VE60-20HQ04 delivers all this with a clear, professional layout:柜门 entry for easy access and equipment movement, a spacious prep counter at one end of the fixed container, a commercial-grade cooking station at the opposite end, and an expanded central zone that adapts to your service needs. No bathroom means lower cost, simpler installation, and maximum flexibility for food service operations where existing facilities are available.

fabricated container house

Features:

  • Professional Kitchen Layout: container door entry, prep zone, cooking zone, expanded dining/service area
  • Commercial Prep Counter: Stainless steel surface, generous workspace
  • Full Cooking Station: Stove/range provisions, ventilation ready
  • Commercial Sinks: Prep sink + hand wash sink with hot/cold water
  • 20ft High Cube Height: 9'6" ceilings – comfortable for kitchen staff
  • Total Space: 29㎡ – 14.6㎡ fixed core + 14㎡ expanded area
  • Expandable Design: Ships as standard 20ft High Cube, expands on-site
  • No Bathroom: Lower cost, simpler installation, greater flexibility
  • Commercial Electrical: Ample outlets for all kitchen equipment
  • Gas Ready: Propane or natural gas connections
  • Grease Management: Space for grease trap installation
  • Durable Finishes: Stainless steel, easy-clean surfaces throughout
  • Ventilation Ready: Exhaust hood provisions with fire suppression space
  • Marine-Grade Steel: Termite-proof, rot-proof, fire-resistant, corrosion-resistant
  • Superior Insulation: Hybrid system for temperature control
  • Double-Glazed Windows: Energy-efficient throughout
  • Low Maintenance: Durable finishes throughout
  • Sustainable: Upcycled container with efficient transport
  • Turnkey Delivery: Fully finished and ready
  • Global Logistics: Standard 20ft High Cube ships anywhere
  • Rapid Deployment: Expanded and ready in days
  • Relocatable: Can be moved as needs change
  • Health Code Friendly: Designed with food safety in mind
  • Flexible Foundation: Works on slab, piers, or screw piles
  • Versatile Use: Pop-up restaurant, catering, events, food truck base
sustainable shipping container homes

Advantages:

  • Purpose-Built Commercial Kitchen: Professional layout for food service
  • Expandable Space: 20ft expands to 29㎡ total kitchen area
  • High Cube Height: 9'6" ceilings – comfortable for kitchen staff
  • No Bathroom: Lower cost, simpler installation, greater flexibility
  • Professional Workflow: container door entry → prep → cooking → service
  • Commercial Prep Counter: Stainless steel, generous workspace
  • Full Cooking Station: Stove/range provisions, ventilation ready
  • Commercial Sinks: Prep sink + hand wash sink with hot/cold water
  • Commercial Electrical: Ample outlets for all equipment
  • Gas Ready: Propane or natural gas connections
  • Durable Finishes: Stainless steel, easy-clean surfaces throughout
  • Health Code Friendly: Designed with food safety in mind
  • Stronger Construction: Steel frame – termite-proof, rot-proof, fire-resistant
  • Superior Insulation: Temperature control for food safety
  • Faster Build: Delivered in weeks, not months
  • 30-50% Cost Savings: Factory-direct pricing beats traditional
  • Transport-Ready: Ships as standard 20ft High Cube anywhere
  • Sustainable: Upcycled container saves ~3,500 kg CO2
  • One Delivery: Complete kitchen in single shipment
  • Relocatable: Move it as your business needs change
  • Phased Growth Ready: Add more units as you expand
  • Remote-Ready: Delivers to challenging locations
  • Minimal Site Impact: No construction chaos
  • Menu Customizable: Configure cooking station for your cuisine
  • Warranty & Support: Comprehensive coverage, dedicated team
modular prefab prefabricated shipping container house home

Applications:

  • Pop-Up Restaurant Kitchen: Complete kitchen for temporary food service
  • Catering Operation Base: Mobile kitchen for weddings and events
  • Food Truck Support Kitchen: Commissary prep and expansion space
  • Event Venue Kitchen: Permanent or semi-permanent venue kitchen
  • Farmers Market Food Vendor: Professional market presence
  • Restaurant Expansion: Additional kitchen capacity without construction
  • Food Hall / Food Court Vendor: Permanent branded kitchen space
  • Brewery / Winery Kitchen: Food service for tasting rooms
  • Film / TV Production Catering: On-set mobile kitchen
  • Construction Site Kitchen: Hot meals for workers
  • Disaster Relief / Emergency Feeding: Rapid-deploy feeding kitchen
  • Ski Resort / Mountain Lodge Kitchen: Cold-weather food service
  • Beach Club / Poolside Cafe: Seasonal food operation
  • University Campus Food Service: Temporary campus kitchen
  • Sports Stadium Concessions: Additional event capacity
  • Food Business Incubator: Shared commercial kitchen space
  • Cooking School / Classroom: Professional teaching kitchen
  • Remote Research Station Kitchen: Food prep in extreme locations
container dormitory

Customization Options:

  • Kitchen Configuration: Customize prep counter size, cooking equipment, and layout
  • Sink Options: Multiple sink configurations – prep sink, 3-compartment sink, hand wash sink
  • Ventilation: Commercial exhaust hood with fire suppression
  • Refrigeration: Undercounter or stand-alone refrigeration
  • Service Counter: Customer-facing service window or counter
  • Dining Area: Seating configuration in expanded space
  • Exterior Cladding: Branded finishes, graphics, or cladding
  • Off-Grid Ready: Generator, solar, or battery options
  • Exterior Color: Select from standard or custom colors

FAST SHIPPING

Fast and reliable delivery

50 DAYS LEAD TIME

Consumer protection program

24/7 SUPPORT

If you have any questions

BEST QUALITY

10+ years on the market

Get a Quote